Fast Responder < 1h
Pop Up Space In Meat Packing District
United States, New YorkHighlights
Move in ready
Available with design, furniture and fixtureFrom 1 days
Flexible booking span in this space3,540 sqft
Medium size for this areaBoutique
Typical store design for this areaAbout this space
This raw space makes an ideal contrast to highlight your concept. High ceilings, rear room skylight. Next door to a European artisanal clothing design house. Fashionably located in the West Village, just below the Meat Packing district, this 3500+ square foot space is ideal to stage your event, launch, or marketing test.
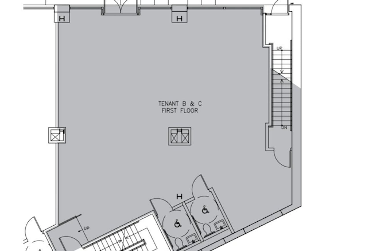
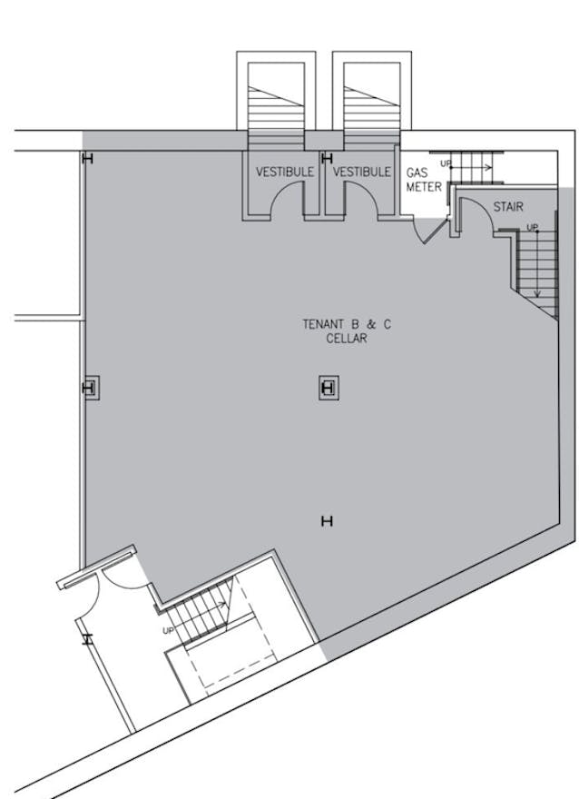
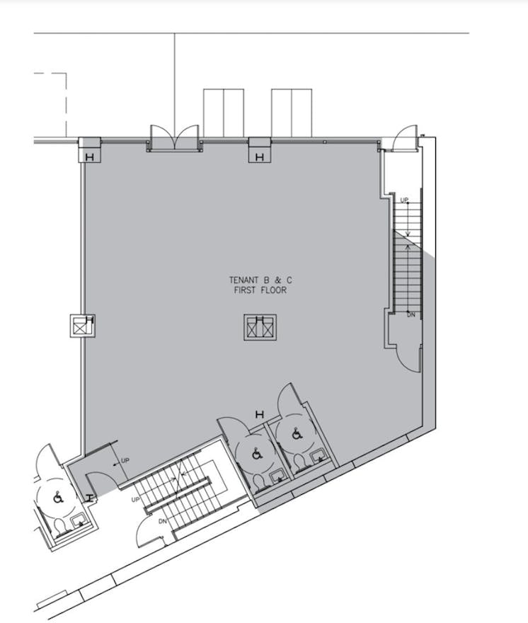
Space Split -
GF - 1790 sqft
Basement - 1747
Ceiling Height - 12 sqft
Frontage - 37sqft
Opening hours
- Monday - Friday
- –
- Saturday
- –
- Sunday
- –
Make the space yours
With our package add-ons, you can make your chosen space move-in ready. From furniture and branding, to staffing and marketing. We've got you covered.
Branded store design
Our experts will suggest furniture and design ideas that will elevate your customer experience.Rent furniture
Rent the very furniture showcased on your custom mood board directly from us - no hassle!Data & analytics
Measure your success with our data, and understand it with our simple analytics.Staffing
We'll get you the staff you need, all you need to do is clicking a few buttons.Point-of-sale
We will ensure that you are ready to accept all major credit cards for a flawless experience.Influencer marketing
Make sure people know about your brand with our brilliant, targeted, influencer marketing strategies.Location
Can't find the perfect place?

Emelie JohanssonStockholm Retail Expert





